时间:2019年11月15日——11月20日
地点:深圳市FM002青年旅社
需求:三网通话 + 三网上网 (全网通)

FM002青年社区与FM148青年社区同属于一家经营的连锁公寓,位于深圳市光明新区马田街道合水口村内,属于典型的城中村的房屋。

村子的街道上信号都非常好,但是由于楼与楼之间的距离太近(握手楼),使得信号无法良好的穿透到室内,该青年旅社的1-5层楼道和房间中,手机基本都是脱网状态,更别说正常的通话和上网了。

狭窄的巷子,紧贴的房屋,以及内部密封式的装修结构,街道外面再好的信号状态,进入到室内均成为了一个脱网的状态。FM002青年公寓刚装修完毕。整个楼层6层,除了顶层6层还能勉强的手机信号外,1-5楼都成为了一个脱离于世界的无网状态。

一. 信源勘测
楼顶的信号其实非常的好,并且该青年旅社的6层都不需要做信号覆盖的室分,需要做室分的工程是1-5层。楼顶视野开阔,不远的楼顶就能看到运营商的基站天线。

三大运营商的信源信号强度勘测数值如下表:

有以上数据可以看出,三大运营商在青年旅社楼顶的信源信号都是非常优质的,在楼顶取信源,并将信号室分覆盖室内,即可解决1-5层缺失信号的问题。
一. 方案设计
2.1 设备频段配置如下
中国移动通话+上网:900M+2600M
中国联通通话+上网:2100M+1800M
中国电信通话+上网:800M+1800M
因此至少选用5频设备放可解决三网的通话和三网的上网需求:800+900+1800+2100+2600

2.2 室内天线分布
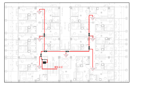
基于户型图和客户的需求,在1层分布了4个天线,2-5层每层分布了7个天线,合计32个天线,均衡分布在过道中。

考虑到过道中的天线信号需要穿墙对房间内进行信号覆盖,因此每个天线的端的信号强度不低于+5dB。
因此采用了2台大功率五频全网通设备,增益80dB,输出+27dBm(0.5W)的设备。方案拓扑图如下:

楼层中布线施工如下所示:

一. 项目施工
由于整个工程前期勘测和沟通到位,项目实施非常顺利和迅速。并且由于整栋楼的桥架清晰和连通,从材料进场到施工交付,一共只用了3天时间即完成了全部的施工工作。

一. 项目验收
设备的五个频段工作均达到满功率输出,设备供电,整栋公寓均实现了全网通的手机信号覆盖,各个房间和角落均可以实现良好的上网和通话体验效果。

从设备的输出值即可看出,5个频段的信号强度输出功率均达到+27dBm(0.5W)的满功率输出状态。完全可以满足室分天线的输出信号强度要求。
对楼层信号抽样打点和测速如下图:

无论是通话信号的强度,和上网的速度,均可达到优质的效果。
一. 项目总结
作为公寓式的楼宇手机信号覆盖,五频全网通的大功率设备无疑是最佳的设备选择方案,其优点在于:
1. 频段齐全,不会存在有些手机有4G,有些手机没有4G的情况,更不会用FDD1800频段来全部解决三网的4G信号。移动的4G必须采用TDD制式的频段,才能确保苹果手机、安卓手机的各种基带芯片的兼容,以满足客户对于4G信号的真正需求;
2. 设备功率输出大,27dBm的输出无疑是更好的满足更多的室内天线分布需求。单设备可驱动12-20个室内天线的输出需求(视现场环境而采用);
3. 80dB的高增益设备,即便是在室外环境信号和信源信号不佳的情况下,也可以将输出信号驱动至最佳的+27dBm的输出状态,保持稳定的和高速的通话上网信号。
下一组:卓越·维港全网通手机信号覆盖项目